アメックス博多南 605号
福岡県春日市 分譲賃貸マンション ペット相談可
福岡県春日市にある分譲賃貸マンション。ペット飼育ご相談ください。
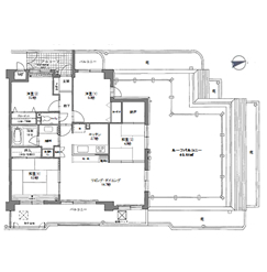
| PRポイント | JR「博多南」駅からJR「博多」駅まで特急で約10分。 博多・天神へのスムーズな通勤・通学!東南角部屋のルーフバルコニー(40.61m2)付住戸、リビング・ダイニングは二面採光、日当たり・通風良好です。 |
|||
|---|---|---|---|---|
| 所在地 | 福岡県春日市上白水9-162 | ![]() |
||
| 交通 | JR「博多南」駅 徒歩約4分 | |||
| 賃料 | ご成約 | 管理費等 | ||
| ペット飼育 | 築年数 | |||
| 専有面積 | 間取り | |||
| 駐車場 | 現況 | |||
| 特記事項 | ||||
| 備考1 | ||||
| 備考2 | ||||
| 設備 | ||||
| その他 | ||||
周辺地図
物件詳細
| 情報更新日 | 2012年9月28日 | 築年月 | |
|---|---|---|---|
| 小学校区 | 中学校区 | ||
| 間取り内訳 | 階建・階 | ||
| 総戸数 | 建物構造 | ||
| バルコニー | 施工会社 | ||
| 駐車場敷金 | 建物工法 | ||
| 土地権利 | 管理形態 | ||
| 管理会社 | 借地期間・地代 | ||
| 保証金 | その他一時金 | ||
| 権利金 | 最適用途 | ||
| 用途地域 | 条件等 | ||
| 国土法 | 入居日 | ||
| 取引態様 | 担当者 | 賃貸課 |









